イベント情報
なぜつなぐハウス?
住宅ローン借入事例
施工事例
お客様の声
会社紹介
モデルハウス
見学会予約
住宅ローン
無料相談会
イベント情報
参考プラン
住宅ローン借入事例
施工事例
お客様の声
会社紹介
なぜつなぐハウスが必要なのか?
商品の特徴
住宅ローン相談
スタッフブログ
お問い合わせ・お見積り
彦根店 0749-30-3565
水口店 0748-63-5144
長浜店 0749-53-4400
TOP>
参考プラン
Lineup
参考プラン
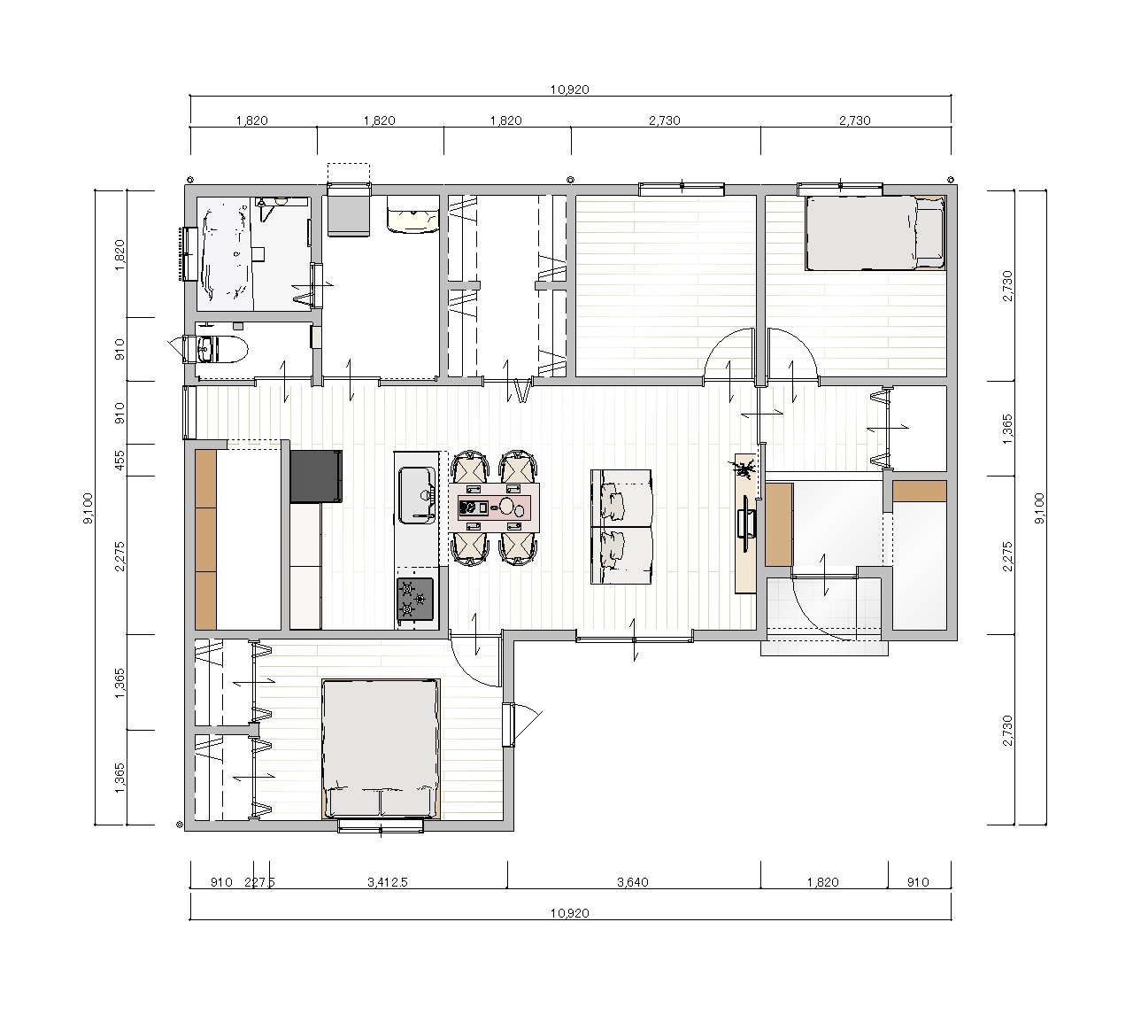
S-23
3LDK /23.04坪
建物価格
1174
万円
(税込1,291.4万円)
付帯工事費
360万円
(税込396.0万円)
建物本体価格+付帯工事費
1534
万円
(税込1687.4万円)
一覧に戻る
平屋暮らしをリアルに想像できる
モデルハウス
を見に来ませんか?
建物や資金のこと、不安なことなど何でもご相談ください!
お家づくりの新しい発見や、わくわくがきっと見つかります!
WEBから来場予約する