
長浜市宮司町にて
2025年8月完成
ウッドデッキ付き3LDKの平屋を販売中!
★2026年1月26日より価格改定しました★
旧価格:3,580万円
新価格:3,480万円
現地見学も随時受付中です!!
POINT!
◎LDK勾配天井
◎土間収納付きの広々玄関
◎LDKから直通の広々なウッドデッキ
◎全室エアコン(4台)・カーテン・照明完備
◎各居室に収納あり
◎家具(150万円分)・観葉植物をそのままプレゼント!!
◎設備 ・・・・TOTO
★ 吹き抜け施工で日当たりも抜群
★ 駐車場3台完備
★ ZEH住宅仕様(補助金対象住宅)
■周辺施設
・JR長浜駅 ・・・車10分
・コープながはま店 ・・・徒歩10分
・クスリのアオキ宮司店 ・・・徒歩10分
・南郷里小学校区
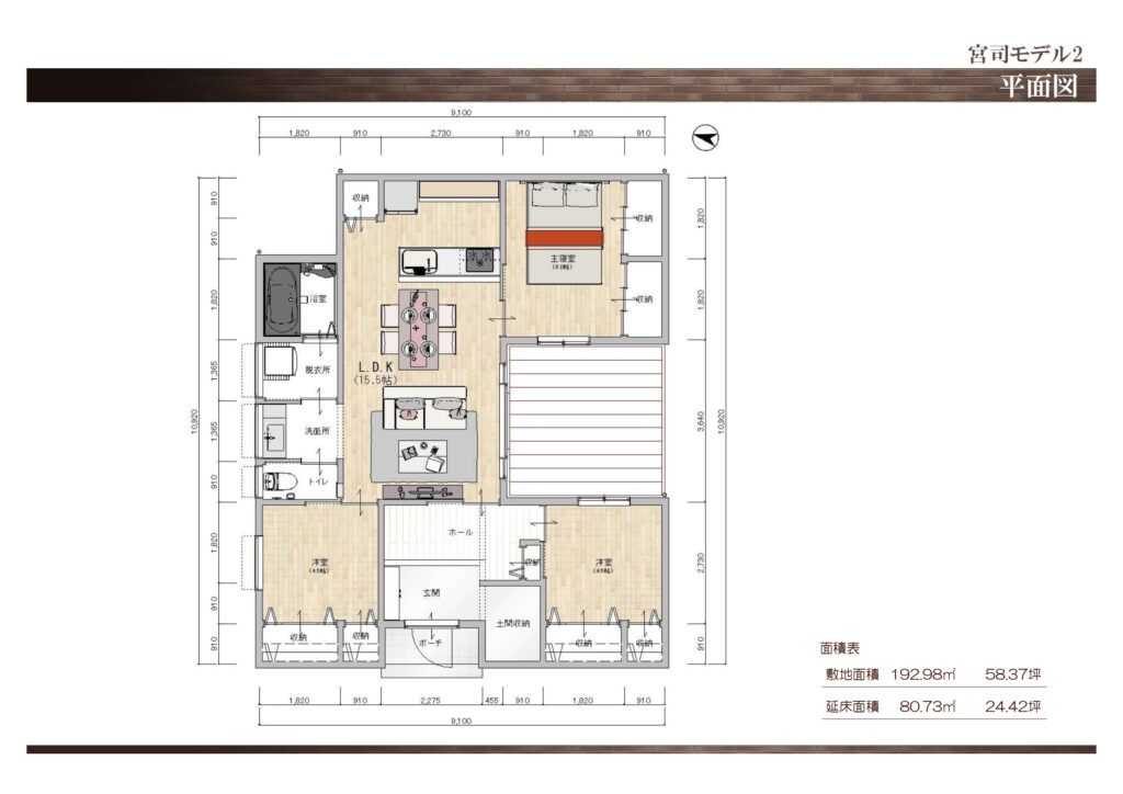
●間取り

●外観

●リビング


●ウッドデッキ

●キッチン

●主寝室

●洋室

●玄関

●浴室 1616サイズ

●洗面台

●脱衣室

●トイレ

●物件情報
・販売価格:3,480万円(税込)
・取引態様:売主 ・建築年月:令和7年7月
・所在地:滋賀県長浜市宮司町546-3
・土地面積:192.98㎡(58.37坪)
・建物面積:80.73㎡
・建ぺい率:60% ・容積率:200%
・構造:木造一階建
・接道情報:公道 北7.9m幅(接道幅12.0m)
公道 西6.0m幅(接道幅7.2m)
・用途地域:第一種住居地域
・都市計画:市街化区域
・上水道:公営水道 ・下水道:公共下水
・プロパンガス
・現況:モデルハウス
・引渡し可能年月:相談
・情報公開日:2025年1月26日
・次回の更新予定日:2025年3月31日
●販売者情報
・株式会社かねこ工務店
・所在地:526-0252 滋賀県長浜市八島町652
・宅建免許:滋賀県知事(3)第3428号
・保証協会:(公社)不動産保証協会
・所属協会:滋賀本部
